REFERENZEN


Vorübergehend geänderte Öffnungszeiten für Büro und Ausstellung.

Geöffnet Mittwochs von 09:00 – 12:00 und 14:00 – 17:00 nur für Verkauf. Der Werkstattbetrieb bleibt geschlossen.

Ihr Schlude-Team

Warenkorb

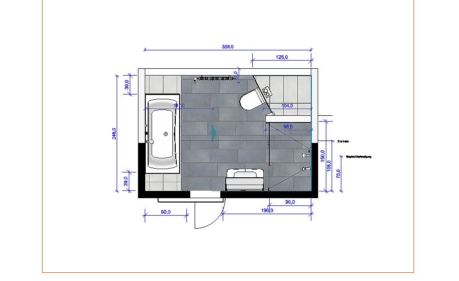
Badrenovation

Freitag, 17. März 2023

Ihr Kontakt zu uns

Im Guggenberg 14
D- 79798 Jestetten-Altenburg

? +49 7745 9 27 39 99
? +49 7745 9 27 39 98
✉️ info@schlude-haustechnik.de
? Unser Standort ....